RD Rohoznice

Dispozice: 4+kk
Počet podlaží: 1
Plocha základové desky: 136 m
2
Užitná plocha: 124 m2

Výstavbu domu jsme zahájili 3.1.2023

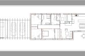
Novostavba RD typu jednopodlažní objekt – bungalov bez obytného podkroví (slouží jako půda) je navržena jako dřevostavba tvořena konstrukčním systémem DEKPANEL z masivních šroubovaných panelů. Půdorys domu je ve tvaru obdélníka se zastavěnou plochou 136 m2 a užitnou plochou 124 m2. Dispozičně pak 4 kk. Zastřešení je řešeno sedlovou střechou bez přesahu. V západním rohu RD je v rámci obdélníkového tvaru výklenek, který slouží jako částečně krytá venkovní terasa, která je zastřešena střešní konstrukcí RD. Podlaha terasy je navržena dřevěná. Výška hlavního hřebene RD nad upraveným terénem je cca 6,3m. Dům bude založen na základové desce a základových pasech. Ze severozápadní strany RD je navržena dřevěná střešní konstrukce, která tvoří kryté stání pro 2 osobní automobily a zároveň zastřešuje zahradní domek. Střešní konstrukce o max. rozměrech 6,7x11,5 m je navržena jako plochá střecha s atikou.

Mohlo by vás zajímat

Kde stavíme?

Dřevostavby na klíč ve vašem kraji

Zakázky přijímáme přibližně v okruhu do 100 km od Nového Bydžova. Naše dřevostavby na klíč vám postavíme v okolí Hradce Králové, Pardubic nebo třeba Litomyšle. Nejste si jistí, zda bychom vám postavili dům i ve vašem městě? Podívejte se na naši podrobnou mapu, nebo se nám rovnou ozvěte.

Jičín
Zde přijímáme zakázky
Hradec Králové
Zde přijímáme zakázky
Nymburk
Zde přijímáme zakázky
Pardubice
Zde přijímáme zakázky
Kolín
Zde přijímáme zakázky
Kutná Hora
Zde přijímáme zakázky
Trutnov
Zde přijímáme zakázky
Chrudim
Zde přijímáme zakázky
Litomyšl
Zde přijímáme zakázky
Náchod
Zde přijímáme zakázky
Praha východ
Zde přijímáme zakázky
Poděbrady
Zde přijímáme zakázky
Mladá Boleslav
Zde přijímáme zakázky
Chotěboř
Zde přijímáme zakázky
Nový Bydžov
Zde přijímáme zakázky
Rychnov nad Kněžnou
Zde přijímáme zakázky
Říčany
Příjem zakázek na dotaz
Benešov
Příjem zakázek na dotaz
Zruč nad Sázavou
Příjem zakázek na dotaz
Jablonec nad Nisou
Příjem zakázek na dotaz
Svitavy
Příjem zakázek na dotaz
Špindlerův Mlýn
Příjem zakázek na dotaz
Jablonné nad Orlicí
Příjem zakázek na dotaz
Bělá pod Bezdězem
Příjem zakázek na dotaz
Ústí nad Orlicí
Realizace hrubé stavby
Brandýs nad Labem
Realizace hrubé stavby
Broumov
Realizace hrubé stavby
Semily
Realizace hrubé stavby
Mnichovo Hradiště
Realizace hrubé stavby
Neratovice
Realizace hrubé stavby
Hlinsko
Realizace hrubé stavby
Žamberk
Realizace hrubé stavby
Liberec
Realizace hrubé stavby
Havlíčkův Brod
Realizace hrubé stavby