Rodinný domek Chotělice

Dispozice: 4+kk
Počet podlaží: 1
Plocha základové desky: 111,30 m2
Užitná plocha:  101,08m2
Počátek výstavby: 6.9.2021

  

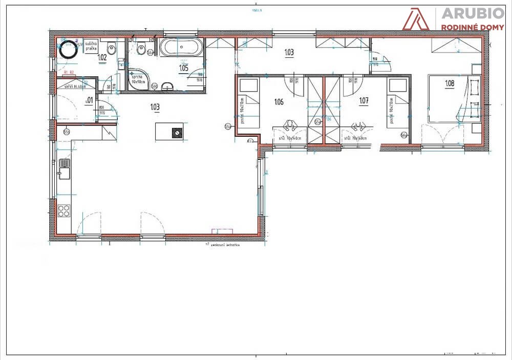
Jedná se o samostatně stojící rodinný dům s půdorysem ve tvaru písmene L, který je umístěn v k.ú. Chotělice.  Dispozičně je 4+kk s užitnou plochou 101,08m2 a zastavěnou plochou 111,30m2. Objekt je kryt částečně sedlovou a částečně plochou střechou. Vedle objektu bude provedena zpevněná plocha pro parkovací stání osobních automobilů a před objektem bude zpevněná plocha pro příchodový chodník, která bude volně navazovat na plochu parkovacího stání. Po vstupu do objektu se nacházíme v zádveří, ze kterého je přístupná chodba. Z této chodby jsou dále zpřístupněny všechny místnosti tohoto domu. Jedná se tedy o samostatné WC, koupelnu, obývací pokoj s kuchyňským koutem, 2 pokoje a ložnice. Vedle místnosti WC je dále situována menší technická místnost.

Mohlo by vás zajímat

Kde stavíme?

Dřevostavby na klíč ve vašem kraji

Zakázky přijímáme přibližně v okruhu do 100 km od Nového Bydžova. Naše dřevostavby na klíč vám postavíme v okolí Hradce Králové, Pardubic nebo třeba Litomyšle. Nejste si jistí, zda bychom vám postavili dům i ve vašem městě? Podívejte se na naši podrobnou mapu, nebo se nám rovnou ozvěte.

Jičín
Zde přijímáme zakázky
Hradec Králové
Zde přijímáme zakázky
Nymburk
Zde přijímáme zakázky
Pardubice
Zde přijímáme zakázky
Kolín
Zde přijímáme zakázky
Kutná Hora
Zde přijímáme zakázky
Trutnov
Zde přijímáme zakázky
Chrudim
Zde přijímáme zakázky
Litomyšl
Zde přijímáme zakázky
Náchod
Zde přijímáme zakázky
Praha východ
Zde přijímáme zakázky
Poděbrady
Zde přijímáme zakázky
Mladá Boleslav
Zde přijímáme zakázky
Chotěboř
Zde přijímáme zakázky
Nový Bydžov
Zde přijímáme zakázky
Rychnov nad Kněžnou
Zde přijímáme zakázky
Říčany
Příjem zakázek na dotaz
Benešov
Příjem zakázek na dotaz
Zruč nad Sázavou
Příjem zakázek na dotaz
Jablonec nad Nisou
Příjem zakázek na dotaz
Svitavy
Příjem zakázek na dotaz
Špindlerův Mlýn
Příjem zakázek na dotaz
Jablonné nad Orlicí
Příjem zakázek na dotaz
Bělá pod Bezdězem
Příjem zakázek na dotaz
Ústí nad Orlicí
Realizace hrubé stavby
Brandýs nad Labem
Realizace hrubé stavby
Broumov
Realizace hrubé stavby
Semily
Realizace hrubé stavby
Mnichovo Hradiště
Realizace hrubé stavby
Neratovice
Realizace hrubé stavby
Hlinsko
Realizace hrubé stavby
Žamberk
Realizace hrubé stavby
Liberec
Realizace hrubé stavby
Havlíčkův Brod
Realizace hrubé stavby