Rodinný dům Dašice III

Dispozice: 5kk
Počet podlaží: 2
Plocha základové desky: 87 m2
Užitná plocha: 1NP 69 m2
Užitná plocha: 2NP 64 m2

Výstavba rodinného domu v Dašicích 

Dne 15. září byla zahájena výstavba moderního rodinného domu, který je založen na stávající základové desce. Jedná se o novostavbu dvoupodlažního objektu bez obytného podkroví a podsklepení, navrženou jako dřevostavbu s využitím masivních nosných DEK panelů.

Dům má obdélníkový půdorys o maximálních rozměrech 7,30 × 11,50 m. K severní fasádě bude přiléhat subtilní dřevěná konstrukce, která poskytne zastřešené parkovací stání i prostor pro uskladnění zahradní techniky. Hlavní část domu bude zastřešena sedlovou střechou, zatímco parkovací stání se skladem bude kryto střechou pultového tvaru.

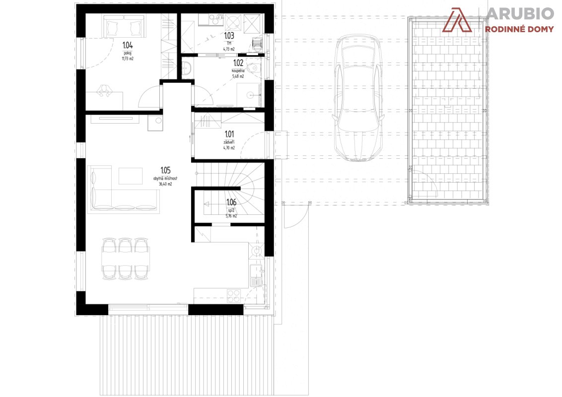
Dispozice domu

Vstupní část domu je situována na sever, odkud se vstupuje do zádveří. To ústí přímo do hlavní obytné místnosti, která propojuje obývací pokoj, kuchyni a jídelnu. Velké balkonové okno přivádí do prostoru dostatek světla a umožňuje přímý vstup na východní terasu. Z obytné místnosti vede schodiště do druhého podlaží.

Přízemí dále nabízí jeden pokoj a koupelnu, která je průchozí do technické místnosti s kompletním zázemím pro provoz domu. V patře se nachází ložnice se šatnou, dva dětské pokoje, samostatné WC a prostorná koupelna.

Nový domov krok za krokem

Výstavba tohoto domu není jen o technických detailech – je to příběh o budování místa, kde bude rodina žít svůj každodenní život. Z obývacího pokoje s výhledem na zahradu se stane srdce celého domu, kde se bude scházet rodina u stolu, kde vzniknou rozhovory, smích i vzpomínky. Na terase budou letní snídaně i večerní posezení a každý pokoj získá svůj jedinečný charakter podle toho, kdo v něm bude bydlet.

Každý detail, od výběru materiálů až po barvu střechy, je součástí cesty k vytvoření domova, který bude nejen funkční a moderní, ale také příjemný a útulný. A právě v tom je kouzlo této stavby – není to jen dům, ale nový začátek.

Mohlo by vás zajímat

Kde stavíme?

Dřevostavby na klíč ve vašem kraji

Zakázky přijímáme přibližně v okruhu do 100 km od Nového Bydžova. Naše dřevostavby na klíč vám postavíme v okolí Hradce Králové, Pardubic nebo třeba Litomyšle. Nejste si jistí, zda bychom vám postavili dům i ve vašem městě? Podívejte se na naši podrobnou mapu, nebo se nám rovnou ozvěte.

Jičín
Zde přijímáme zakázky
Hradec Králové
Zde přijímáme zakázky
Nymburk
Zde přijímáme zakázky
Pardubice
Zde přijímáme zakázky
Kolín
Zde přijímáme zakázky
Kutná Hora
Zde přijímáme zakázky
Trutnov
Zde přijímáme zakázky
Chrudim
Zde přijímáme zakázky
Litomyšl
Zde přijímáme zakázky
Náchod
Zde přijímáme zakázky
Praha východ
Zde přijímáme zakázky
Poděbrady
Zde přijímáme zakázky
Mladá Boleslav
Zde přijímáme zakázky
Chotěboř
Zde přijímáme zakázky
Nový Bydžov
Zde přijímáme zakázky
Rychnov nad Kněžnou
Zde přijímáme zakázky
Říčany
Příjem zakázek na dotaz
Benešov
Příjem zakázek na dotaz
Zruč nad Sázavou
Příjem zakázek na dotaz
Jablonec nad Nisou
Příjem zakázek na dotaz
Svitavy
Příjem zakázek na dotaz
Špindlerův Mlýn
Příjem zakázek na dotaz
Jablonné nad Orlicí
Příjem zakázek na dotaz
Bělá pod Bezdězem
Příjem zakázek na dotaz
Ústí nad Orlicí
Realizace hrubé stavby
Brandýs nad Labem
Realizace hrubé stavby
Broumov
Realizace hrubé stavby
Semily
Realizace hrubé stavby
Mnichovo Hradiště
Realizace hrubé stavby
Neratovice
Realizace hrubé stavby
Hlinsko
Realizace hrubé stavby
Žamberk
Realizace hrubé stavby
Liberec
Realizace hrubé stavby
Havlíčkův Brod
Realizace hrubé stavby