Rodinný dům Hostinné II

Dispozice: 4+kk s podkrovím
Počet podlaží: 1
Plocha základové desky: 109m2
Užitná plocha:  99m2      

Rodinný dům – novostavba

Navržený rodinný dům je jednopodlažní objekt s obytným podkrovím, bez podsklepení. Stavba je koncipována jako moderní dřevostavba s nosným konstrukčním systémem z masivních dřevěných DEK panelů. Půdorys má obdélníkový tvar s maximálními vnějšími rozměry 10,70 × 12,20 m. Výška hlavního hřebene střechy dosahuje přibližně 7,5 m nad úrovní čisté podlahy.

Střešní konstrukce je řešena pomocí příhradových vazníků sedlového tvaru. Fasáda kombinuje krémově bílou tenkovrstvou silikátovou omítku s horizontálním dřevěným obkladem z českého modřínu. Podbití střešních přesahů je tvořeno přírodní bělenou palubkou, která dodává domu jemný a přírodní charakter.

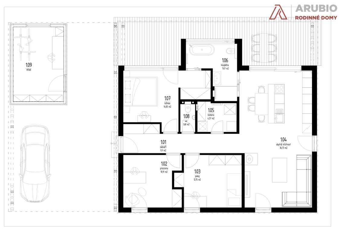
Vstup do domu je orientován na sever a ústí do zádveří, které zároveň plní funkci centrální chodby propojující všechny obytné prostory. Na pravé straně chodby se nachází pracovna a dětský pokoj. Na levé straně pak hlavní ložnice, jež je propojena s vlastní šatnou a navazující koupelnou. Ta je zároveň přístupná i z hlavní obytné zóny.

Dále jsou na levé straně chodby umístěny samostatné WC a technická místnost s kompletním technickým zázemím domu a výstupem do ateliéru v podkroví. Hlavní obytná místnost tvoří otevřený prostor obývacího pokoje, jídelny a kuchyně, odkud je přímý vstup na východně orientovanou krytou terasu pomocí francouzského okna.

Mohlo by vás zajímat

Kde stavíme?

Dřevostavby na klíč ve vašem kraji

Zakázky přijímáme přibližně v okruhu do 100 km od Nového Bydžova. Naše dřevostavby na klíč vám postavíme v okolí Hradce Králové, Pardubic nebo třeba Litomyšle. Nejste si jistí, zda bychom vám postavili dům i ve vašem městě? Podívejte se na naši podrobnou mapu, nebo se nám rovnou ozvěte.

Jičín
Zde přijímáme zakázky
Hradec Králové
Zde přijímáme zakázky
Nymburk
Zde přijímáme zakázky
Pardubice
Zde přijímáme zakázky
Kolín
Zde přijímáme zakázky
Kutná Hora
Zde přijímáme zakázky
Trutnov
Zde přijímáme zakázky
Chrudim
Zde přijímáme zakázky
Litomyšl
Zde přijímáme zakázky
Náchod
Zde přijímáme zakázky
Praha východ
Zde přijímáme zakázky
Poděbrady
Zde přijímáme zakázky
Mladá Boleslav
Zde přijímáme zakázky
Chotěboř
Zde přijímáme zakázky
Nový Bydžov
Zde přijímáme zakázky
Rychnov nad Kněžnou
Zde přijímáme zakázky
Říčany
Příjem zakázek na dotaz
Benešov
Příjem zakázek na dotaz
Zruč nad Sázavou
Příjem zakázek na dotaz
Jablonec nad Nisou
Příjem zakázek na dotaz
Svitavy
Příjem zakázek na dotaz
Špindlerův Mlýn
Příjem zakázek na dotaz
Jablonné nad Orlicí
Příjem zakázek na dotaz
Bělá pod Bezdězem
Příjem zakázek na dotaz
Ústí nad Orlicí
Realizace hrubé stavby
Brandýs nad Labem
Realizace hrubé stavby
Broumov
Realizace hrubé stavby
Semily
Realizace hrubé stavby
Mnichovo Hradiště
Realizace hrubé stavby
Neratovice
Realizace hrubé stavby
Hlinsko
Realizace hrubé stavby
Žamberk
Realizace hrubé stavby
Liberec
Realizace hrubé stavby
Havlíčkův Brod
Realizace hrubé stavby