Rodinný dům Pertoltice

Dispozice: 6+ kuchyň
Počet podlaží: 2
Plocha základové desky:  141m2
Užitná plocha:  128 m2

Novostavba rodinného domu – moderní dřevostavba

V květnu letošního roku jsme v obci Pertoltice zahájili výstavbu nového rodinného domu. Prvním krokem byla základová deska, na kterou koncem května navázala samotná montáž dřevostavby z masivních DEK panelů.

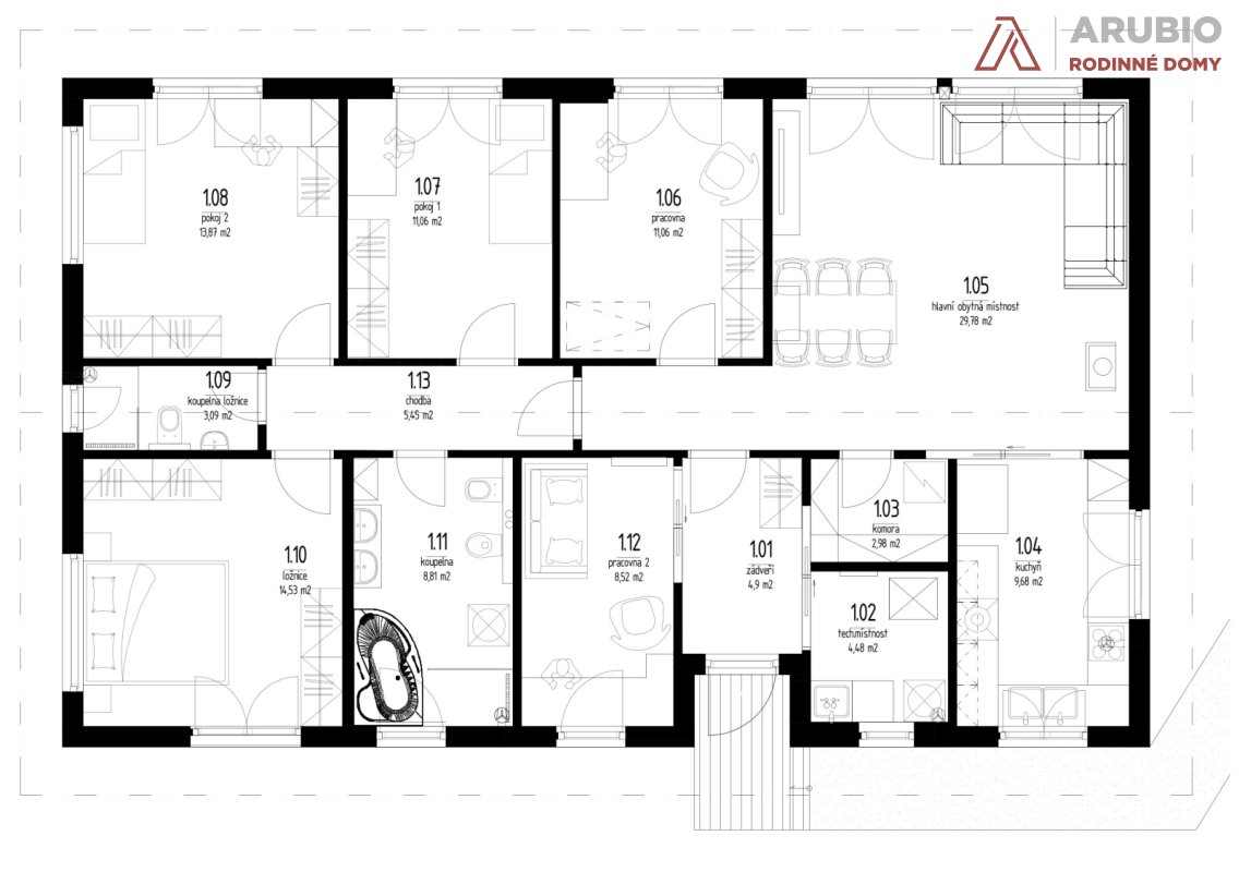
Jednopodlažní dům obdélníkového půdorysu (9,7 × 15,8 m) doplňuje dřevěná pergola, která se v budoucnu promění na prosklenou zimní zahradu. Dům je zastřešen sedlovou střechou s krytinou z betonových tašek v cihlově červeném odstínu. Fasádu tvoří krémově bílá omítka, hnědé podbití a plastová okna s trojskly v dekoru tmavého dubu.

Dispozice je řešena prakticky: ze zádveří je vstup do technické místnosti a pracovny, na kterou navazuje prostorný obývací pokoj s jídelnou a přímým vstupem na terasu. Kuchyň je oddělena posuvnými dveřmi, nechybí komora, druhá pracovna ani klidová zóna se dvěma dětskými pokoji, ložnicí a koupelnou.

Součástí stavby je oplocený pozemek s vjezdovou bránou a příjezdovými plochami ze zámkové dlažby.

Mohlo by vás zajímat

Kde stavíme?

Dřevostavby na klíč ve vašem kraji

Zakázky přijímáme přibližně v okruhu do 100 km od Nového Bydžova. Naše dřevostavby na klíč vám postavíme v okolí Hradce Králové, Pardubic nebo třeba Litomyšle. Nejste si jistí, zda bychom vám postavili dům i ve vašem městě? Podívejte se na naši podrobnou mapu, nebo se nám rovnou ozvěte.

Jičín
Zde přijímáme zakázky
Hradec Králové
Zde přijímáme zakázky
Nymburk
Zde přijímáme zakázky
Pardubice
Zde přijímáme zakázky
Kolín
Zde přijímáme zakázky
Kutná Hora
Zde přijímáme zakázky
Trutnov
Zde přijímáme zakázky
Chrudim
Zde přijímáme zakázky
Litomyšl
Zde přijímáme zakázky
Náchod
Zde přijímáme zakázky
Praha východ
Zde přijímáme zakázky
Poděbrady
Zde přijímáme zakázky
Mladá Boleslav
Zde přijímáme zakázky
Chotěboř
Zde přijímáme zakázky
Nový Bydžov
Zde přijímáme zakázky
Rychnov nad Kněžnou
Zde přijímáme zakázky
Říčany
Příjem zakázek na dotaz
Benešov
Příjem zakázek na dotaz
Zruč nad Sázavou
Příjem zakázek na dotaz
Jablonec nad Nisou
Příjem zakázek na dotaz
Svitavy
Příjem zakázek na dotaz
Špindlerův Mlýn
Příjem zakázek na dotaz
Jablonné nad Orlicí
Příjem zakázek na dotaz
Bělá pod Bezdězem
Příjem zakázek na dotaz
Ústí nad Orlicí
Realizace hrubé stavby
Brandýs nad Labem
Realizace hrubé stavby
Broumov
Realizace hrubé stavby
Semily
Realizace hrubé stavby
Mnichovo Hradiště
Realizace hrubé stavby
Neratovice
Realizace hrubé stavby
Hlinsko
Realizace hrubé stavby
Žamberk
Realizace hrubé stavby
Liberec
Realizace hrubé stavby
Havlíčkův Brod
Realizace hrubé stavby