Jednopodlažní dům u Lázní Bělohrad

… dům pro rodinu, která oceňuje originalitu a každodenní pohodlí

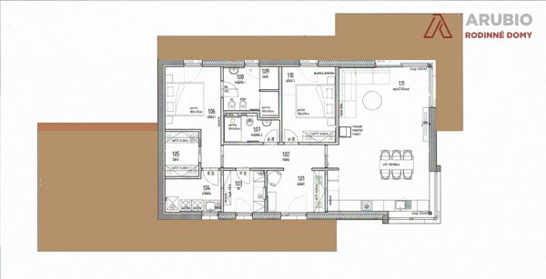
Dispozice: 3+kk
Počet podlaží: 1
Plocha základové desky: 115 m2
Užitná plocha: 104 m
Doba výstavby:  9 měsíců

Elegantní dům s půdorysem do tvaru obdélníku, sedlovou střechou a fasádou doplněnou dřevěným obkladem. Podél domu ze severovýchodní strany je velkou výhodou senzační terasa s krásným výhledem na okolní krajinu, která se stane od jara do podzimu oblíbeným místem setkávání členů rodiny a jejich přátel. Promyšlený půdorys nabízí téměř vše, co charakterizuje pohodové bydlení.

Otevřený prostor v hlavní části domu, kde se setkávají členové domácnosti ponechává dostatek místa pro luxusní kuchyň s jídelním koutem a obývací prostor. Ten je obohacen o velké prosklení s výstupem na terasu. Pečlivě navržené uspořádání oken působí lehce a moderně. Zároveň v domě osvětluje všechny místnosti a přináší do interiéru teplo a dobrou náladu.

K domu přiléhá parkovací stání se zastřešením plochou střechou. Dispoziční řešení uplatňuje systém centrální chodby, kdy téměř všechny místnost jsou z této chodby dostupné. Lze odsud vejít do zádveří, WC, technické místnosti, ložnice1, koupelny a WC, ložnice 2, obývacího pokoje a kuchyně. Z ložnice 1 jsou pak přístupné následující: prádelna, šatna, koupelna a WC a sauna.

 Uvedené vizualizace a fotografie jsou pouze informativní. Navrženo a realizováno individuálně dle přání klienta.

 

 

Kde stavíme?

Dřevostavby na klíč ve vašem kraji

Zakázky přijímáme přibližně v okruhu do 100 km od Nového Bydžova. Naše dřevostavby na klíč vám postavíme v okolí Hradce Králové, Pardubic nebo třeba Litomyšle. Nejste si jistí, zda bychom vám postavili dům i ve vašem městě? Podívejte se na naši podrobnou mapu, nebo se nám rovnou ozvěte.

Jičín
Zde přijímáme zakázky
Hradec Králové
Zde přijímáme zakázky
Nymburk
Zde přijímáme zakázky
Pardubice
Zde přijímáme zakázky
Kolín
Zde přijímáme zakázky
Kutná Hora
Zde přijímáme zakázky
Trutnov
Zde přijímáme zakázky
Chrudim
Zde přijímáme zakázky
Litomyšl
Zde přijímáme zakázky
Náchod
Zde přijímáme zakázky
Praha východ
Zde přijímáme zakázky
Poděbrady
Zde přijímáme zakázky
Mladá Boleslav
Zde přijímáme zakázky
Chotěboř
Zde přijímáme zakázky
Nový Bydžov
Zde přijímáme zakázky
Rychnov nad Kněžnou
Zde přijímáme zakázky
Říčany
Příjem zakázek na dotaz
Benešov
Příjem zakázek na dotaz
Zruč nad Sázavou
Příjem zakázek na dotaz
Jablonec nad Nisou
Příjem zakázek na dotaz
Svitavy
Příjem zakázek na dotaz
Špindlerův Mlýn
Příjem zakázek na dotaz
Jablonné nad Orlicí
Příjem zakázek na dotaz
Bělá pod Bezdězem
Příjem zakázek na dotaz
Ústí nad Orlicí
Realizace hrubé stavby
Brandýs nad Labem
Realizace hrubé stavby
Broumov
Realizace hrubé stavby
Semily
Realizace hrubé stavby
Mnichovo Hradiště
Realizace hrubé stavby
Neratovice
Realizace hrubé stavby
Hlinsko
Realizace hrubé stavby
Žamberk
Realizace hrubé stavby
Liberec
Realizace hrubé stavby
Havlíčkův Brod
Realizace hrubé stavby