Prostorný rodinný dům 5+kk v obci Černilov

Dispozice: 5+kk
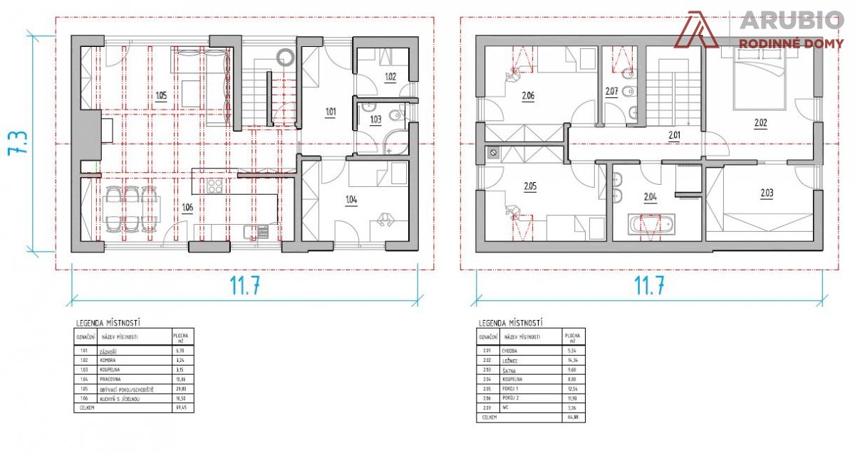
Počet podlaží: 2
Plocha základové desky: 84,24 m2
Užitná plocha: 135,79 m2
(spodní patro – 70,23 m2, vrchní patro – 65,56 m2)
Doba trvání výstavby: 9 měsíců
Dokončení stavby: 2019
 

Tato stavba o velikosti 5+kk byla vystavěna na základě návrhu majitele. Zajímavostí je především částečně provětrávaná fasáda. Přírodní dřevo se zároveň prolnulo i do interiéru obývacího pokoje s krbem, kde dotváří dokonalou harmonii příjemného a teplého domova.  V prvním nadzemním podlaží mimo jiné nacházíme malou nadčasovou koupelnu v moderním stylu a pracovnu, která může sloužit i jako hostinský pokoj. Centrálním prostorem přízemí je obývací pokoj. Z něj je přístupná terasa se vstupem do zahrady. Dům nabízí oddělenou klidnou a rušnou část domu. V druhém nadzemním podlaží nacházíme 2pokoje, ložnici se šatnou, kde se pamatovalo na dostatek úložného prostoru a podkrovní koupelnu. Tu si majitelé přáli mít moderní a zároveň funkční. Je vedená v módní šedé a pískové barvě. Celkově působí velice vkusně a elegantně. Místnost sice není příliš velká, ale zrcadlo umístěné nad dvěma umyvadly opticky prostor zvětšuje. Dominantou jsou dvě umyvadla položena na dřevěné desce. Podkrovní místnosti jsou prosvětleny velkými okny. V ložnici si majitelé dopřáli prostornou šatnu, diskrétně skrytou za posuvnými dveřmi. Jejich přáním bylo vybudovat moderní, prosvětlené bydlení, s elegantním a otevřeným prostorem. Orientace domu a vzrostlá zeleň zajišťuje maximální soukromí pro příjemné trávení volného času celé rodiny.

Kde stavíme?

Dřevostavby na klíč ve vašem kraji

Zakázky přijímáme přibližně v okruhu do 100 km od Nového Bydžova. Naše dřevostavby na klíč vám postavíme v okolí Hradce Králové, Pardubic nebo třeba Litomyšle. Nejste si jistí, zda bychom vám postavili dům i ve vašem městě? Podívejte se na naši podrobnou mapu, nebo se nám rovnou ozvěte.

Jičín
Zde přijímáme zakázky
Hradec Králové
Zde přijímáme zakázky
Nymburk
Zde přijímáme zakázky
Pardubice
Zde přijímáme zakázky
Kolín
Zde přijímáme zakázky
Kutná Hora
Zde přijímáme zakázky
Trutnov
Zde přijímáme zakázky
Chrudim
Zde přijímáme zakázky
Litomyšl
Zde přijímáme zakázky
Náchod
Zde přijímáme zakázky
Praha východ
Zde přijímáme zakázky
Poděbrady
Zde přijímáme zakázky
Mladá Boleslav
Zde přijímáme zakázky
Chotěboř
Zde přijímáme zakázky
Nový Bydžov
Zde přijímáme zakázky
Rychnov nad Kněžnou
Zde přijímáme zakázky
Říčany
Příjem zakázek na dotaz
Benešov
Příjem zakázek na dotaz
Zruč nad Sázavou
Příjem zakázek na dotaz
Jablonec nad Nisou
Příjem zakázek na dotaz
Svitavy
Příjem zakázek na dotaz
Špindlerův Mlýn
Příjem zakázek na dotaz
Jablonné nad Orlicí
Příjem zakázek na dotaz
Bělá pod Bezdězem
Příjem zakázek na dotaz
Ústí nad Orlicí
Realizace hrubé stavby
Brandýs nad Labem
Realizace hrubé stavby
Broumov
Realizace hrubé stavby
Semily
Realizace hrubé stavby
Mnichovo Hradiště
Realizace hrubé stavby
Neratovice
Realizace hrubé stavby
Hlinsko
Realizace hrubé stavby
Žamberk
Realizace hrubé stavby
Liberec
Realizace hrubé stavby
Havlíčkův Brod
Realizace hrubé stavby