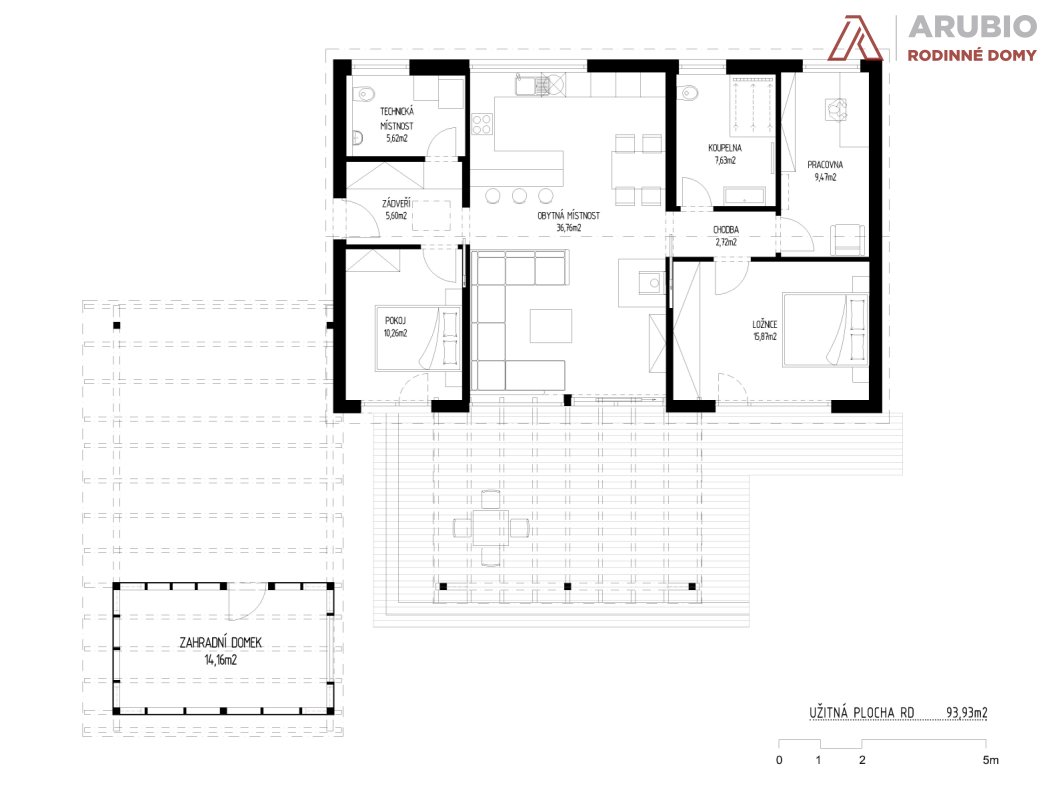
Rodinný dům Bezděkov

Dispozice: 4+kk
Počet podlaží: 1
Plocha základové desky: 103 m2
Užitná plocha:  94m2

Domov, kde se dobře žije každý den

Výstavba již pátého domu v obci Bezděkov. Od začátku bylo jasné, že nepůjde jen o další stavbu, ale o místo, kde vzniknou každodenní rituály, klidná rána i večery strávené spolu. Dům je navržen jako pohodlné a dlouhodobé bydlení pro tříčlennou rodinu – s důrazem na jednoduchost, světlo a příjemnou atmosféru.

Jednopodlažní řešení nabízí přirozený pohyb bez schodů a jasně odděluje společné a klidové zóny. Vše je navrženo tak, aby dům fungoval přirozeně a bez zbytečné složitosti. Sedlová střecha a čisté linie dávají domu nadčasový vzhled, který zapadne do okolní zástavby i krajiny.

Na jižní straně domu se obytný prostor otevírá směrem do zahrady a plynule přechází na dřevěnou, částečně zastřešenou terasu. Ta se stává přirozeným prodloužením interiéru – místem pro ranní kávu, letní večeře i klidné večery pod širým nebem. Nechybí ani zahradní domek s krytým stáním pro dvě auta, který prakticky doplňuje celý koncept domu.

Srdcem domu je otevřený obytný prostor, kde se potkává kuchyň, jídelna a obývací pokoj. Je to místo, kde se vaří, povídá, odpočívá a tráví čas společně. Díky promyšlené orientaci je interiér plný denního světla po celý den a působí vzdušně a přívětivě.

Soukromá část domu nabízí ložnici, pokoj a pracovnu – klidná zákoutí pro odpočinek, práci i soukromí každého člena rodiny. Celý dům je navržen tak, aby byl praktický, útulný a snadno přizpůsobitelný každodenním potřebám.

Tento dům není o metrech čtverečních ani technických detailech. Je o pocitu domova, kam se každý den rádi vracíte.

Kde stavíme?

Dřevostavby na klíč ve vašem kraji

Zakázky přijímáme přibližně v okruhu do 100 km od Nového Bydžova. Naše dřevostavby na klíč vám postavíme v okolí Hradce Králové, Pardubic nebo třeba Litomyšle. Nejste si jistí, zda bychom vám postavili dům i ve vašem městě? Podívejte se na naši podrobnou mapu, nebo se nám rovnou ozvěte.

Jičín
Zde přijímáme zakázky
Hradec Králové
Zde přijímáme zakázky
Nymburk
Zde přijímáme zakázky
Pardubice
Zde přijímáme zakázky
Kolín
Zde přijímáme zakázky
Kutná Hora
Zde přijímáme zakázky
Trutnov
Zde přijímáme zakázky
Chrudim
Zde přijímáme zakázky
Litomyšl
Zde přijímáme zakázky
Náchod
Zde přijímáme zakázky
Praha východ
Zde přijímáme zakázky
Poděbrady
Zde přijímáme zakázky
Mladá Boleslav
Zde přijímáme zakázky
Chotěboř
Zde přijímáme zakázky
Nový Bydžov
Zde přijímáme zakázky
Rychnov nad Kněžnou
Zde přijímáme zakázky
Říčany
Příjem zakázek na dotaz
Benešov
Příjem zakázek na dotaz
Zruč nad Sázavou
Příjem zakázek na dotaz
Jablonec nad Nisou
Příjem zakázek na dotaz
Svitavy
Příjem zakázek na dotaz
Špindlerův Mlýn
Příjem zakázek na dotaz
Jablonné nad Orlicí
Příjem zakázek na dotaz
Bělá pod Bezdězem
Příjem zakázek na dotaz
Ústí nad Orlicí
Realizace hrubé stavby
Brandýs nad Labem
Realizace hrubé stavby
Broumov
Realizace hrubé stavby
Semily
Realizace hrubé stavby
Mnichovo Hradiště
Realizace hrubé stavby
Neratovice
Realizace hrubé stavby
Hlinsko
Realizace hrubé stavby
Žamberk
Realizace hrubé stavby
Liberec
Realizace hrubé stavby
Havlíčkův Brod
Realizace hrubé stavby