Rodinný dům Hostinné II

Dispozice: 4+kk  
Počet podlaží: 1
Plocha základové desky: 109 m2
Užitná plocha: 99 m2

Moderní rodinný dům – Spojení přírody, komfortu a chytrého designu

Moderní rodinný dům navržený jako jednopodlažní objekt představuje harmonii čistých linií, funkčnosti a přírodních materiálů. Konstrukčně je řešen jako dřevostavba z masivních DEK panelů, která nabízí nejen pevnost, ale i zdravé a příjemné vnitřní prostředí. Kompaktní obdélníkový půdorys o rozměrech 10,70 × 12,20 m a sedlová střecha podtrhují nadčasovou siluetu domu.

Fasáda domu kombinuje elegantní krémově bílou omítku s částečným dřevěným obkladem, zatímco podbití z přírodní bělené palubky celý výraz jemně doplňuje. Čisté linie, funkčnost a estetika zde vytvářejí vyvážený celek, který podtrhuje moderní a zároveň přirozený charakter stavby. Tento dům není jen místem k bydlení – je to prostor pro život s lehkostí, stylem a respektem k přírodě.

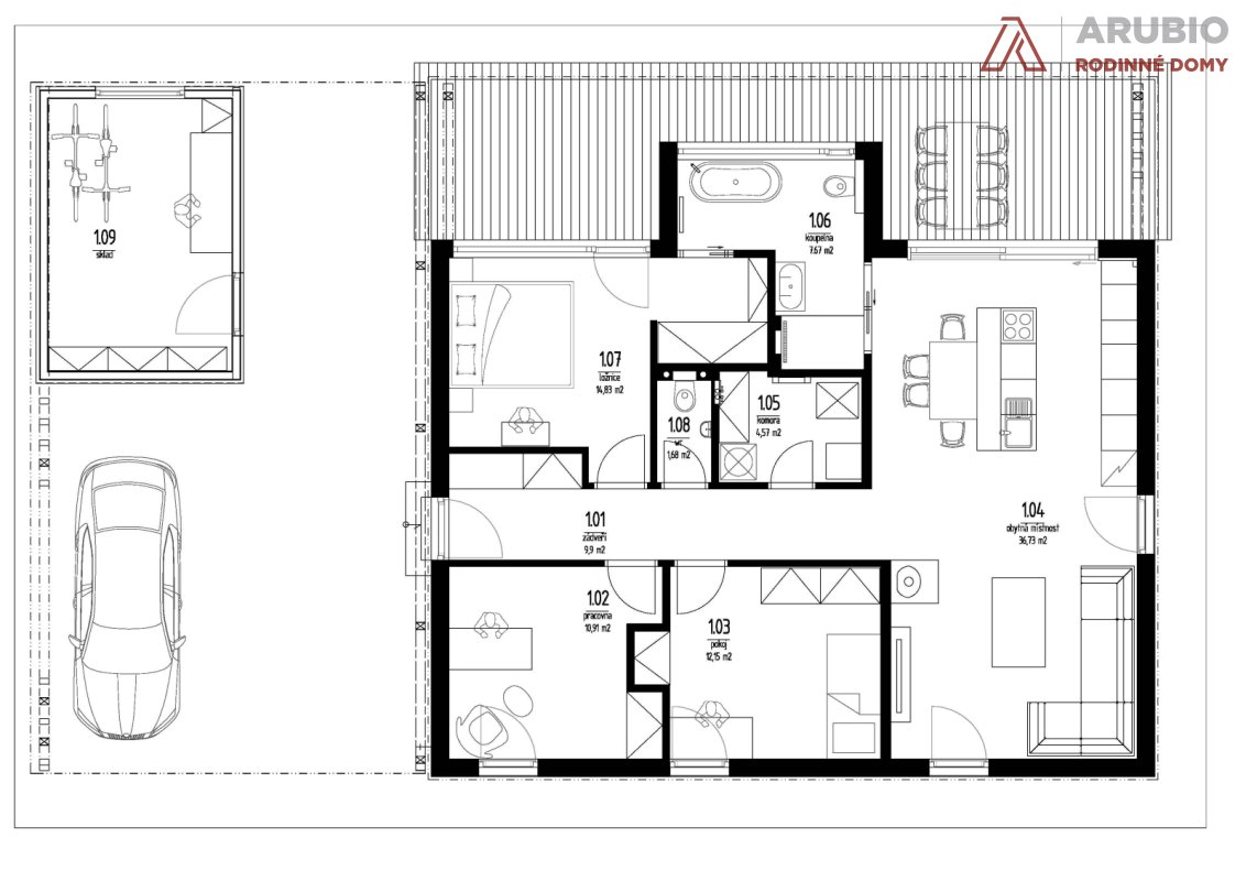
Dispoziční řešení je promyšlené do posledního detailu. Vstup ze severní strany vede do zádveří, které přechází v centrální chodbu propojující všechny obytné místnosti. Pravá část domu nabízí pracovnu a dětský pokoj, zatímco levá je vyhrazena klidové zóně – hlavní ložnici se šatnou a vlastní koupelnou. Ta je navíc přístupná i z hlavního obytného prostoru, což zvyšuje komfort každodenního užívání. Koupelna dokonale vystihuje celkový koncept domu – minimalismus, světlo a klid. Jemné světlé obklady v kombinaci s přírodní dřevěnou deskou pod umyvadlem vytvářejí nadčasovou eleganci. Solitérní vana umístěná u velkoformátového okna nabízí jedinečný zážitek z relaxace s výhledem do krajiny. Černé baterie a detaily dodávají prostoru moderní kontrast a sofistikovaný výraz, zatímco kruhové zrcadlo zjemňuje celou kompozici.

Dominantou interiéru je otevřený obytný prostor propojující obývací pokoj, jídelnu a kuchyni s přímým vstupem na krytou terasu orientovanou na východ.

Výsledkem je bydlení, které spojuje estetiku, funkčnost a každodenní komfort v jeden harmonický celek.

Kde stavíme?

Dřevostavby na klíč ve vašem kraji

Zakázky přijímáme přibližně v okruhu do 100 km od Nového Bydžova. Naše dřevostavby na klíč vám postavíme v okolí Hradce Králové, Pardubic nebo třeba Litomyšle. Nejste si jistí, zda bychom vám postavili dům i ve vašem městě? Podívejte se na naši podrobnou mapu, nebo se nám rovnou ozvěte.

Jičín
Zde přijímáme zakázky
Hradec Králové
Zde přijímáme zakázky
Nymburk
Zde přijímáme zakázky
Pardubice
Zde přijímáme zakázky
Kolín
Zde přijímáme zakázky
Kutná Hora
Zde přijímáme zakázky
Trutnov
Zde přijímáme zakázky
Chrudim
Zde přijímáme zakázky
Litomyšl
Zde přijímáme zakázky
Náchod
Zde přijímáme zakázky
Praha východ
Zde přijímáme zakázky
Poděbrady
Zde přijímáme zakázky
Mladá Boleslav
Zde přijímáme zakázky
Chotěboř
Zde přijímáme zakázky
Nový Bydžov
Zde přijímáme zakázky
Rychnov nad Kněžnou
Zde přijímáme zakázky
Říčany
Příjem zakázek na dotaz
Benešov
Příjem zakázek na dotaz
Zruč nad Sázavou
Příjem zakázek na dotaz
Jablonec nad Nisou
Příjem zakázek na dotaz
Svitavy
Příjem zakázek na dotaz
Špindlerův Mlýn
Příjem zakázek na dotaz
Jablonné nad Orlicí
Příjem zakázek na dotaz
Bělá pod Bezdězem
Příjem zakázek na dotaz
Ústí nad Orlicí
Realizace hrubé stavby
Brandýs nad Labem
Realizace hrubé stavby
Broumov
Realizace hrubé stavby
Semily
Realizace hrubé stavby
Mnichovo Hradiště
Realizace hrubé stavby
Neratovice
Realizace hrubé stavby
Hlinsko
Realizace hrubé stavby
Žamberk
Realizace hrubé stavby
Liberec
Realizace hrubé stavby
Havlíčkův Brod
Realizace hrubé stavby